
Drawing
NU-543-500 Biosafety Cabinet Spec Drawing
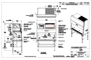
The NU-543-500 Biosafety Cabinet Spec Drawing provides an in-depth look at the features and specifications of NuAire's Class II, Type A2 Biosafety Cabinet. This detailed drawing showcases the cabinet's robust design, highlighting key components such as the HEPA supply and exhaust filters, LED lighting, and ergonomic work tray. The cabinet is engineered for optimal safety and efficiency, featuring an OLED display and FlowGard control system for precise airflow management. The drawing details optional accessories like an IV bar and UV light, ensuring the cabinet meets diverse laboratory needs. This spec drawing is an essential resource for lab planners, safety officers, and technicians, offering a clear visual guide to the cabinet's dimensions, components, and capabilities. Download the spec drawing to ensure your laboratory has a top-tier biosafety cabinet designed for performance and safety.