
Drawing
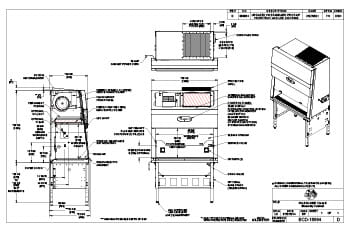
NU-543-400E 230-Volt Biosafety Cabinet Spec Drawing
The NU-543-400E Biosafety Cabinet specification drawing details the construction and features of a 1.2-meter (4-feet) wide, 230-Volt Class II, Type A2 model. This cabinet is designed to ensure high protection for laboratory personnel, products, and the environment, making it a cornerstone for biosafety in any research or clinical setting. The document highlights the cabinet’s dimensions, electrical requirements, and ergonomic design, emphasizing its utility in handling volatile organic compounds and microbiological work with enhanced safety features like HEPA filtration. This biosafety cabinet is ideal for laboratories seeking to combine functionality with strict safety standards and ensures operational excellence and user comfort.