
Drawing
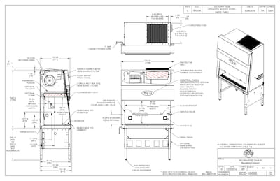
NU-540 1.2m 230V Class II Biosafety Cabinet Cut Sheet
Product specification drawing for 230-Volt 1.2 meters (4-feet) width LabGard Class II, Type A2 Biosafety Cabinet model NU-540-400E from NuAire.
Product specification drawing for 230-Volt 1.2 meters (4-feet) width LabGard Class II, Type A2 Biosafety Cabinet model NU-540-400E from NuAire.