
Drawing
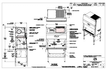
NU-543-400 Biosafety Cabinet Spec Drawing
The NuAire NU-543-400 LabGard is a 4-foot (1.2 meters) wide Class II, Type A2 Biosafety Cabinet designed to meet the rigorous demands of safety and functionality in the laboratory. Operating on a 115-volt system, this cabinet is engineered for optimal control of cross-contamination and airborne pathogens with HEPA-filtered laminar airflow throughout the work zone.
The design features ensure a protective barrier against biohazards, offering product and personnel protection while minimizing noise and energy consumption. Its ergonomic build enhances user comfort with an adjustable viewing window and spacious work area that accommodates a range of research activities from microbiology to pharmaceutical development.
Each NU-543-400 model comes equipped with intuitive controls for airflow management and a digital interface for monitoring cabinet parameters. The construction integrates high-quality stainless steel interiors that are easy to clean and maintain, ensuring longevity and compliance with global safety standards. This biosafety cabinet is an indispensable tool in any lab, providing a reliable environment for handling sensitive materials safely.