
Drawing
NU-545-400 115V Biosafety Cabinet Cut Sheet
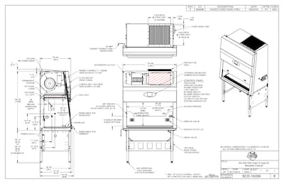
Product specification drawing for 115-Volt 4-feet (1.2 meters) width LabGard Class II, Type A2 Biosafety Cabinet model NU-545-400 from NuAire.
Product specification drawing for 115-Volt 4-feet (1.2 meters) width LabGard Class II, Type A2 Biosafety Cabinet model NU-545-400 from NuAire.