
Drawing
NU-545-400E 230V Biosafety Cabinet Cut Sheet
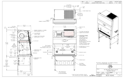
Product specification drawing for 230-Volt nominal 1.2 meters (4-feet) width LabGard Class II, Type A2 Biosafety Cabinet model NU-545-400E from NuAire.
Product specification drawing for 230-Volt nominal 1.2 meters (4-feet) width LabGard Class II, Type A2 Biosafety Cabinet model NU-545-400E from NuAire.