
Drawing
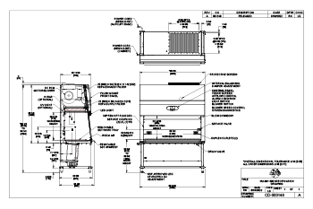
NU-581-500, 5-foot Biosafety Cabinet Drawing (115V)
Experience enhanced lab safety with the NU-581-500 Biosafety Cabinet, a robust 5-foot-wide unit tailored for a 115V electrical setup. This Cabinet, complete with an automatic base stand, ensures ergonomic comfort and superior airflow management, safeguarded by a reliable DC ECM motor/blower system. Its design, showcased in our precise downloadable drawing, provides a comprehensive view of its advanced features, including optional UV light and IV bar, HEPA filtration, and user-friendly touchscreen controls.