
Drawing
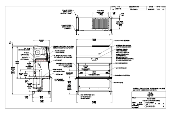
NU-581-500E, 1.5 Meter Biosafety Cabinet Drawing (230V)
Discover precision and safety with the NU-581-500E Biosafety Cabinet, a 1.5-meter wide containment solution for modern laboratories. Its 230V electrical configuration powers an advanced DC ECM motor/blower, ensuring robust airflow management. Optional UV light and IV bar expand functionality, while the touch screen control panel offers intuitive operation, with alarm conditions and system diagnostics at your fingertips. The automatic base stand facilitates optimal work height adjustment, catering to various research needs with its standard 10-inch access opening.