
Drawing
NU-340-330/NU-340-336 Laminar Airflow Workstation 115V Cut Sheet
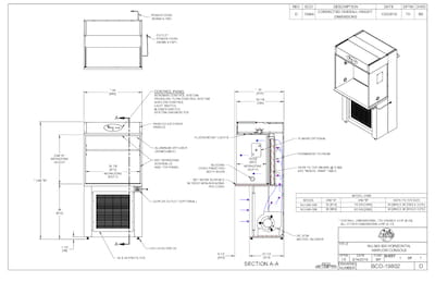
Product specification drawing for 115-volt 3-feet (0.9 meters) wide vertical laminar airflow workstation models NU-340-330 and NU-340-336 with leg levelers.
Product specification drawing for 115-volt 3-feet (0.9 meters) wide vertical laminar airflow workstation models NU-340-330 and NU-340-336 with leg levelers.