
Drawing
NU-140-630 Laminar Airflow Workstation 115V Cut Sheet
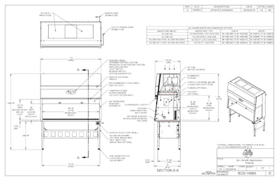
Product specification drawing for 115-volt nominal 6-feet (1.8 meters) vertical laminar airflow workstation model NU-140-630.
Product specification drawing for 115-volt nominal 6-feet (1.8 meters) vertical laminar airflow workstation model NU-140-630.