
Drawing
NU-543-300K Class II, Type A2 Biosafety Cabinet Cut Sheet
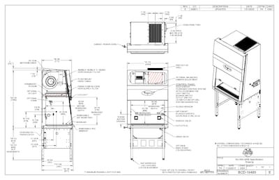
Product specification drawing for 115-Volt nominal 0.9-meter (3-feet) wide LabGard Class II, Type A2 Biosafety Cabinet model NU-543-300K.
Product specification drawing for 115-Volt nominal 0.9-meter (3-feet) wide LabGard Class II, Type A2 Biosafety Cabinet model NU-543-300K.