
Drawing
NU-813-300 Class I CVE 115V Cut Sheet
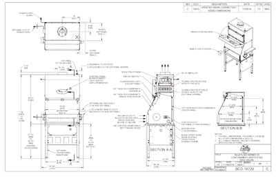
Product specification drawing for 115-volt nominal 3-feet (0.9 meters) LabGard Class I Containment Ventilated Enclosure model NU-813-300 from NuAire.
Product specification drawing for 115-volt nominal 3-feet (0.9 meters) LabGard Class I Containment Ventilated Enclosure model NU-813-300 from NuAire.