
Drawing
NU-540-400 4FT 115V Class II, Type A2 Biosafety Cabinet - Engineering Drawing
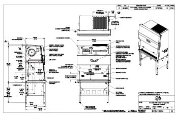
This engineering drawing comprehensively details the NU-540-400 LabGard Class II, Type A2 Biosafety Cabinet. The 115-volt, 1.2-meter (4-foot) width cabinet is designed for optimal laboratory safety and efficiency. Key features illustrated include HEPA filters for supply and exhaust, a sliding window, and an optional UV light. The drawing highlights the AeroMax Control System, DC ECM motor/blower, LED lighting, and removable stainless steel work surfaces. Precise dimensions are provided for the work zone, overall cabinet size, and adjustable base stand. The document also shows the locations of service valves, electrical outlets, and the user-friendly control panel. This detailed schematic is invaluable for laboratory planners, facility managers, and researchers who need exact specifications to integrate this biosafety cabinet into their workspace, ensuring compliance with safety standards and optimal performance.