
Drawing
NU-340-430/NU-340-436 Laminar Airflow Workstation 115V Cut Sheet
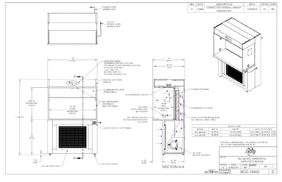
Product specification drawing for 115-volt 4-feet (1.2 meters) wide vertical laminar airflow workstation models NU-340-430 and NU-340-436 with leg levelers.
Product specification drawing for 115-volt 4-feet (1.2 meters) wide vertical laminar airflow workstation models NU-340-430 and NU-340-436 with leg levelers.