
Drawing
NU-240-330, NU-240-336 Specification Drawing
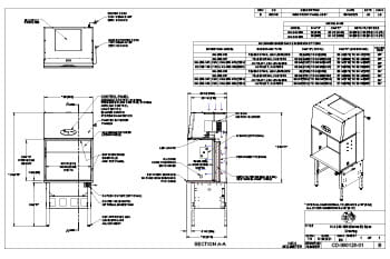
Introducing the NU-240-330 and NU-240-336 Specification Drawing, a blueprint for the AireGard ES NU-240, a nominal 3-foot wide Horizontal Laminar Airflow Workstation. This cutting-edge design delivers ISO Class 5 air quality through HEPA filtration, ensuring 99.99% efficiency at 0.3 microns. The workstation is equipped with the AeroMax Control System for precise airflow control, enhancing safety and efficiency in sensitive environments. Available options include telescoping or auto lift base stands, IV bars, and more, making it adaptable to various laboratory needs. Whether for pharmaceutical compounding or microelectronics, the NU-240-330 and NU-240-336 sets a new standard in clean-air solutions.