
Drawing
NU-540-300, 3-ft 115V Class II Biosafety Cabinet Drawing
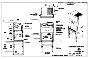
The BCD-16513 NU-540-300 3-ft 115V Class II Biosafety Cabinet drawing provides comprehensive details about this high-performance laboratory equipment. This downloadable document illustrates the cabinet's design, including its ergonomic features, advanced HEPA filtration system, and energy-efficient DC ECM motor. Perfect for engineers and lab planners, this drawing helps visualize the robust safety features and efficient airflow management that make the NU-540-300 an ideal choice for maintaining a sterile work environment. Ensure you have all the detailed dimensions and specifications for your planning needs by downloading this informative drawing.