
Drawing
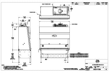
6-foot (1.8m) Biosafety Cabinet with Exhaust Canopy Cut Sheet
The product drawing displays a nominal width of 6 feet (1.8 meters) NuAire Class II, Type A2 biosafety cabinet installed on an NU-500-103 Telescoping Base Stand with Leg Levelers and an NU-911-602 configurable airflow canopy. The product drawing provides critical dimensions to help with product selection and installation, making it easier for you to choose the right product for your laboratory needs. Download this product cut sheet to identify if a 6 feet (1.8 meters) NuAire Class II, Type A2 biosafety cabinet is the right product to meet your space requirements.