763-553-1270
Login
Search
Search
Products
All Products
NuAire manufactures scientific laboratory equipment and compounding pharmacy airflow products providing personnel, product, and environmental protection in critical research environments throughout the world.
All Products
Biosafety Cabinets
Laminar Airflow Workstations
Containment Ventilated Enclosures
Restricted Access Barrier Systems
CO2 Incubators
Ultralow Freezers
Animal Transfer Stations
Animal Refuse Workstations
Custom Lab Automation Enclosures
Parts
QuickShip
Industries
Biomedical/Microbiological
Clinical Diagnostics
COVID 19
Drug Discovery
Engineering Controls
Environmental Laboratory
Food and Beverage
Industrial Laboratory
Non-Sterile Hazardous Drug Compounding
Sterile Hazardous Drug Compounding
Sterile Non-Hazardous Drug Compounding
Vivarium
Sales and Support
Customer Service
GSA / Contracts / Group Purchasing Information
Resources
Sales Partner Locator
Service Partner Locator
Service Partner Resources
Warranty
Parts
Submitting Orders for Parts
Requesting Quote info on Part Number and Pricing
Careers
About
About Us
History
IFBA Collaboration
Quality & Sustainability
Testimonials
Contact Us
763-553-1270
Login
Search
Home
>
Resources
>
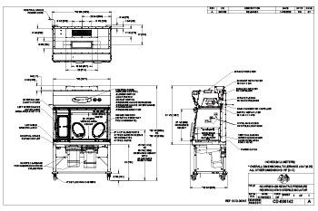
Compounding Aseptic Containment Isolator NU-NR800-400 Drawing
>
Drawing
Compounding Aseptic Containment Isolator NU-NR800-400 Drawing
11/16/2022
Download
Product specification drawing of nominal 4-foot (1.2 m) width recirculating Compounding Aseptic Containment Isolator (CACI) model NU-NR800-400.
View the Full Guide for Compounding Aseptic Containment Isolator NU-NR800-400 Drawing
Download
Compounding Aseptic Containment Isolator NU-NR800-400 Drawing
Download