
Drawing
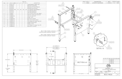
Telescoping Base Stand Assembly with Leg Levelers 31-inch Depth
View dimensions and assembly of the 31-inch depth telescoping base stand accessory with leg levelers for NU-500-100, NU-500-101, NU-500-102, and NU-500-103.
View dimensions and assembly of the 31-inch depth telescoping base stand accessory with leg levelers for NU-500-100, NU-500-101, NU-500-102, and NU-500-103.