
Drawing
NU-140-330 Laminar Airflow Workstation 115V Cut Sheet
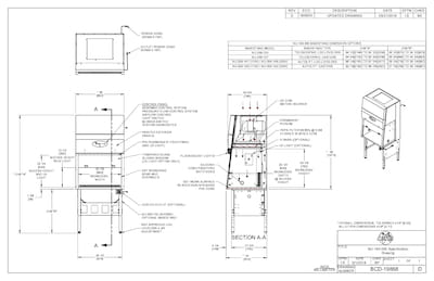
Product specification drawing for 115-volt nominal 3-feet (0.9 meters) laminar airflow workstation model NU-140-330.
Product specification drawing for 115-volt nominal 3-feet (0.9 meters) laminar airflow workstation model NU-140-330.