
Drawing
NU-140-530 Laminar Airflow Workstation 115V Cut Sheet
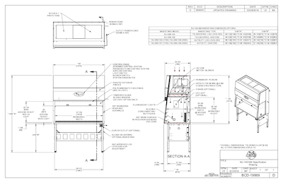
Product specification drawing for 115-volt nominal 5-feet (1.5 meters) laminar airflow workstation model NU-140-530.
Product specification drawing for 115-volt nominal 5-feet (1.5 meters) laminar airflow workstation model NU-140-530.