
Drawing
NU-340-630 LAFW Casters 115V Cut Sheet
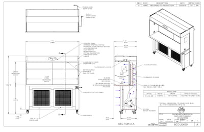
Product specification drawing for 115-volt 6-feet (1.8 meters) wide vertical laminar airflow workstation models NU-340-630 with casters.
Product specification drawing for 115-volt 6-feet (1.8 meters) wide vertical laminar airflow workstation models NU-340-630 with casters.