
Drawing
NU-340-630 Laminar Airflow Workstation 115V Cut Sheet
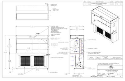
Product specification drawing for 115-volt nominal 6-feet (1.8 meters) horizontal laminar airflow workstation model NU-340-630.
Product specification drawing for 115-volt nominal 6-feet (1.8 meters) horizontal laminar airflow workstation model NU-340-630.