
Drawing
Compounding Aseptic Containment Isolator NU-NTE800-600 Drawing
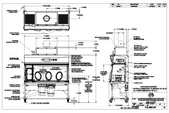
Product specification drawing of nominal 6-foot (1.8 m) width total exhaust Compounding Aseptic Containment Isolator (CACI) model NU-NTE800-600.
Product specification drawing of nominal 6-foot (1.8 m) width total exhaust Compounding Aseptic Containment Isolator (CACI) model NU-NTE800-600.