
Drawing
NU-500 Telescoping Base Stand with Casters Cut Sheet
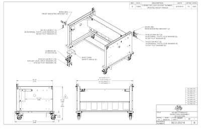
Product specification drawing for telescoping base stand with casters model NU-500 for NuAire biosafety cabinets.
Product specification drawing for telescoping base stand with casters model NU-500 for NuAire biosafety cabinets.