
Drawing
NU-540 1.8m 230V Class II Biosafety Cabinet Cut Sheet
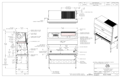
Product specification drawing for 230-Volt 1.6 meters (6-feet) width LabGard Class II, Type A2 Biosafety Cabinet model NU-540-600E from NuAire.
Product specification drawing for 230-Volt 1.6 meters (6-feet) width LabGard Class II, Type A2 Biosafety Cabinet model NU-540-600E from NuAire.