
Drawing
NU-543-400J Class II, Type A2 Biosafety Cabinet Cut Sheet
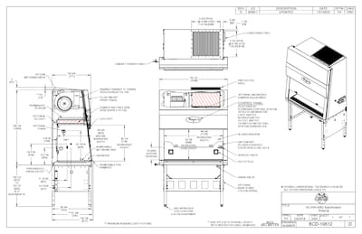
Product specification drawing for 100-Volt nominal 1.2-meter (4-feet) wide LabGard Class II, Type A2 Biosafety Cabinet model NU-543-400J.
Product specification drawing for 100-Volt nominal 1.2-meter (4-feet) wide LabGard Class II, Type A2 Biosafety Cabinet model NU-543-400J.