
Drawing
NU-543-600E 230-Volt Biosafety Cabinet Spec Drawing
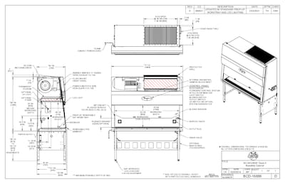
Product specification drawing for nominal 1.8 meters (6-feet) 230-Volt Class II, Type A2 Biosafety Cabinet model NU-543-600E.
Product specification drawing for nominal 1.8 meters (6-feet) 230-Volt Class II, Type A2 Biosafety Cabinet model NU-543-600E.