
Drawing
NU-545-600 115V Biosafety Cabinet Cut Sheet
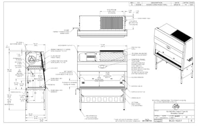
Product specification drawing for 115-Volt 6-feet (1.8 meters) width LabGard Class II, Type A2 Biosafety Cabinet model NU-545-600 from NuAire.
Product specification drawing for 115-Volt 6-feet (1.8 meters) width LabGard Class II, Type A2 Biosafety Cabinet model NU-545-600 from NuAire.