
Drawing
Motorized Base Stand with Casters for NU-140 & NU-240
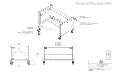
The motorized base stands with casters installation and specification documentation for laminar airflow workstation models NU-140 and NU-240.
The motorized base stands with casters installation and specification documentation for laminar airflow workstation models NU-140 and NU-240.