
Drawing
Motorized Base Stand with Leg Levelers Drawing for NU-140 & NU-240
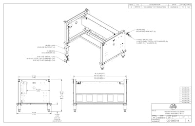
Assembly and specification drawing for motorized base stand with leg leveler for laminar airflow workstation models NU-140 and NU-240.
Assembly and specification drawing for motorized base stand with leg leveler for laminar airflow workstation models NU-140 and NU-240.