
Drawing
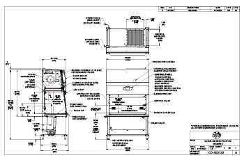
NU-581-400, 4-foot Biosafety Cabinet Drawing (115V)
Access the technical drawing of the NU-581-400 Biosafety Cabinet with Automatic Base Stand, a comprehensive guide detailing the nominal 4-foot wide, 115v configuration. This document provides precise measurements, features, and specifications, ensuring accurate installation and integration into your laboratory space. From ergonomic design elements like the automatic base stand to safety features including HEPA filtration and optional UV light, the drawing offers a clear roadmap for users and facility managers to optimize lab safety and functionality.