
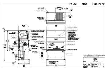
Drawing
NU-581-400E, 1.2 Meter Biosafety Cabinet Drawing (230V)
Explore the NU-581-400E Biosafety Cabinet with Automatic Base Stand drawing, your comprehensive guide for a 1.2-meter-wide, 230V configuration. This detailed drawing provides all necessary dimensions, features, and specifications for installation and operation. It highlights vital components like the DC ECM motor/blower, optional UV light, HEPA H14 filters, and ergonomic design elements. Ideal for laboratories requiring precise environmental control, this document ensures you have all the information for seamless integration and optimal biosafety practices.