
Drawing
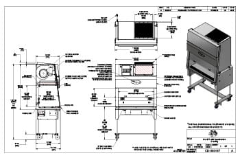
Specification Drawing NU-677-400 Nominal 4-Foot Animal Handling Class II, Type A2 Biosafety Cabinet
This specification drawing provides a comprehensive and detailed view of the NU-677-400 Nominal 4-foot Animal Handling Class II, Type A2 Biosafety Cabinet. Designed for lab animal professionals who require precision and in-depth understanding, this document offers accurate measurements, design details, and model standard features. Available for download, this resource is essential for planning lab layout, facilitating equipment installation, and ensuring compatibility with your vivarium. The drawing allows you to visualize and prepare for the installation of the NU-677-400, a top-tier solution for safe and efficient laboratory animal handling. Use this specification drawing as your blueprint for a seamless and informed installation process.