
Drawing
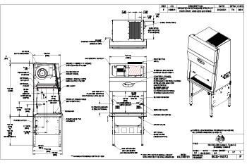
NU-543-300 (3-foot, 0.9m) Class II, Type A2 Biosafety Cabinet Drawing
Discover the blueprint for unparalleled safety with the NU-543-300 Class II, Type A2 Biosafety Cabinet Drawing. This detailed schematic showcases a 3-foot (0.9m) cabinet, expertly designed to protect laboratory personnel and samples. Featuring advanced airflow patterns, efficient HEPA filtration, and ergonomic design, this drawing illustrates the meticulous engineering behind our biosafety solutions. Ideal for handling hazardous materials and pathogens, this cabinet ensures a secure and contamination-free environment for your critical scientific work. Download the drawing and explore how NuAire sets the standard in biosafety.