
Drawing
NU-608-400 Animal Refuse Workstation Specification Drawing with Motorized Base Stand
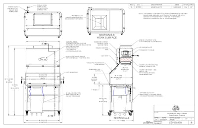
Product specification drawing for AllerGard 4-foot (1.2 m) width Animal Waste Disposal Workstation model NU-608-400 with Motorized Base Stand.
Product specification drawing for AllerGard 4-foot (1.2 m) width Animal Waste Disposal Workstation model NU-608-400 with Motorized Base Stand.