
Drawing
NU-608-400 Animal Refuse Workstation Specification Drawing with Telescoping Base
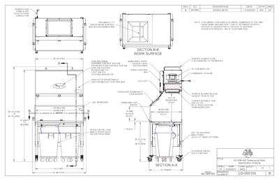
Product specification drawing for AllerGard model NU-608-400 Animal Refuse Workstation with telescoping base stand.
Product specification drawing for AllerGard model NU-608-400 Animal Refuse Workstation with telescoping base stand.